Závěsná vyrovnávací nádrž Defro DBO W 100L
- Tepelná izolace nárazníků je tvořena vrstvou pěnového polystyrenu trvale připevněnou ke stěnám nádrže. Tepelně izolační kryt je vyroben z plastu. Naše nárazníky mají vysokou třídu energetické účinnosti.
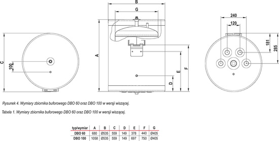
Závěsná vyrovnávací nádrž DBO
Vyrovnávací zásobník DBO, závěsná verze, je zodpovědný za shromažďování, ukládání a předávání přebytečné teplé topné vody z různých zdrojů tepla, jako jsou: kotle na pelety, kotle na eko-hrášek, napájecí kotle nebo tepelná čerpadla. Zásobník chrání topný systém, absorbuje rozdíl mezi tepelným výkonem topných zařízení a výkonem přenášeným do topného systému. DBO, díky konektorům namontovaným na spodní straně, lze snadno připojit k topným zařízením vyráběným DEFRO. Tepelná izolace nárazníku je vyrobena z kvalitních materiálů ve snímatelném plastovém krytu. Naše nárazníky mají vysokou třídu energetické účinnosti.| Parametr IU | DBO 60 W | DBO 100 W |
|---|---|---|
| Skladovací kapacita (V)1) l | 60 | 100 |
| Ztráta pohotovostního režimu (S)1) W | 58,75 | 68,06 |
| Třída energetické účinnosti | C | |
| Max. cirkulační tlak každý bar | 3 | |
| Max. Tlak okruhu TUV bar | 3 | |
| Max. teplota pracovního média °C | 90 | |
| napájení V/Hz | ~230/50 | |
Značka
Symbol
ZBSDDBOW100
EAN
5904422945824
Záruka
Kód výrobce
BCW-DBO-100-D-W
Energetická třída
C
Pojemność
100 L
Výška
1058 mm
Średnica
535 mm
Záruka výrobce na 2 roky
Výrobce zaručuje opravu nebo výměnu zařízení až 24 měsíců od data nákupu. Kontaktujte obchod prostřednictvím formuláře pro stížnosti na adrese objednat kurýra, který vyzvedne zařízení u vás doma.
Napište svoji recenzi
Dotaz na výrobek









